Property Documents
✕
363 Sequoyah Lane
gallery
overview
floor plans
videos
map
Contact
Menu
Contact
363 Sequoyah Lane
Brevard, North Carolina 28712
Offered at
$
Gallery
View 55 Photos
Contact
Overview
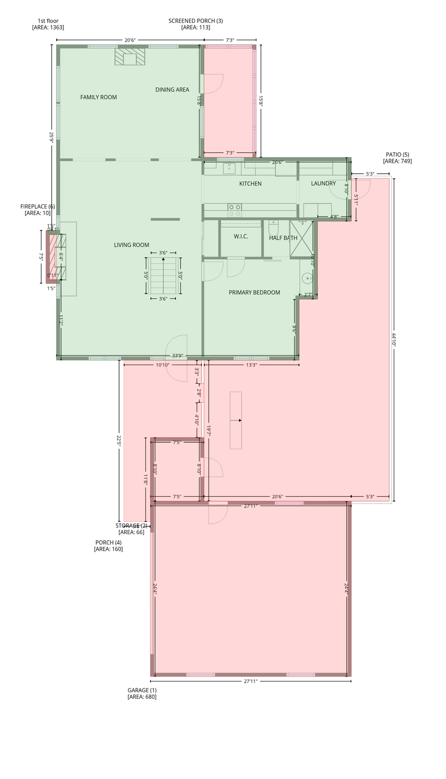
Floor Plans
Videos
040155.DTA.JOH.DHU.01VA17-363 Sequoyah (Reel)
Presented by
Paige Bass
(828) 242-7030
paigebass@ROGPivot.com
DRE: 293150
Get in touch
First Name*
Last name*
Phone number*
Email address*
Your message*
Send Message
Thank you!
Your message is sent.
We will be in touch with you soon.
Excellent
Location